Appartamento in Vendita
Proponiamo in Vendita splendido bilocale di ampia metratura, situato in una zona tranquilla e comoda ai servizi, a pochi minuti a piedi dal centro storico di Rivoli e dall'affascinante Castello.
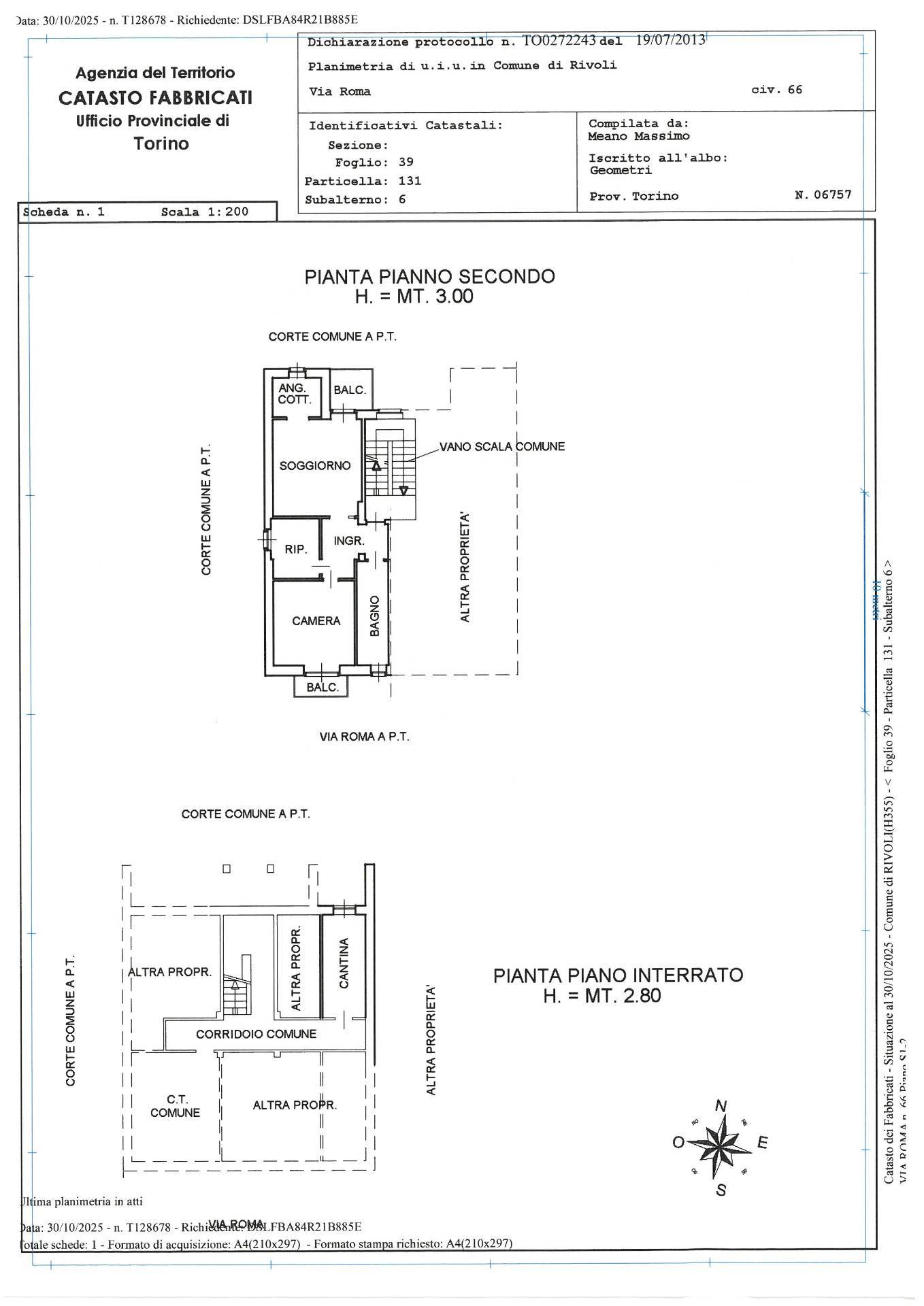
L'Appartamento si trova al secondo piano di una piccola palazzina ben tenuta ed è libero su tre arie, caratteristica che garantisce grande luminosità e un'ottima ventilazione naturale durante tutto il giorno.
Completamente ristrutturato nel 2015 con gusto moderno e materiali di qualità, l'immobile si presenta in buone condizioni ed è pronto per essere abitato, così composto : Ingresso su disimpegno con soffitto ribassato e faretti a led, al cui interno sono stati realizzati due pratici ripostigli sospesi; luminoso soggiorno con cucinotto , spaziosa camera da letto, studio di circa 6 mq con finestra, ideale come zona smart working o cabina armadio a e bagno finestrato con finiture moderne e sanitari sospesi. Dotato di condizionatore.
L'immobile è completato da cantina e BOX AUTO SINGOLO nel cortile ad € 15.000,00
Libero 10 mesi dal compromesso con facoltà di anticipare.
Classe energetica
EP glnr: 200.83 kwh/m²
































